首都圏エリア

汐留メディアタワー

汐留メディアタワー
所在地 東京都港区東新橋一丁目7番1号
竣工年月 2003年6月
規模 地上34階・地下4階・塔屋2階
構造 鉄鋼造
延床面積 63,472.63㎡(19,200.47坪)
基準階有効面積 要問合せ
基準天井高 3,200mm
OAフロア 無し
空調方式 セントラル(募集区画は個別調整可)
警備形態 24時間有人管理
EV台数 要問合せ
駐車場 要問合せ
開閉館時間 5:00~翌1:00
コンセント容量 100VA/㎡
アクセス JR「新橋」駅徒歩約7分、都営浅草線「新橋」駅徒歩約5分、銀座線「新橋」駅徒歩約10分、都営大江戸線「汐留」駅直結、新交通ゆりかもめ「汐留」駅直結

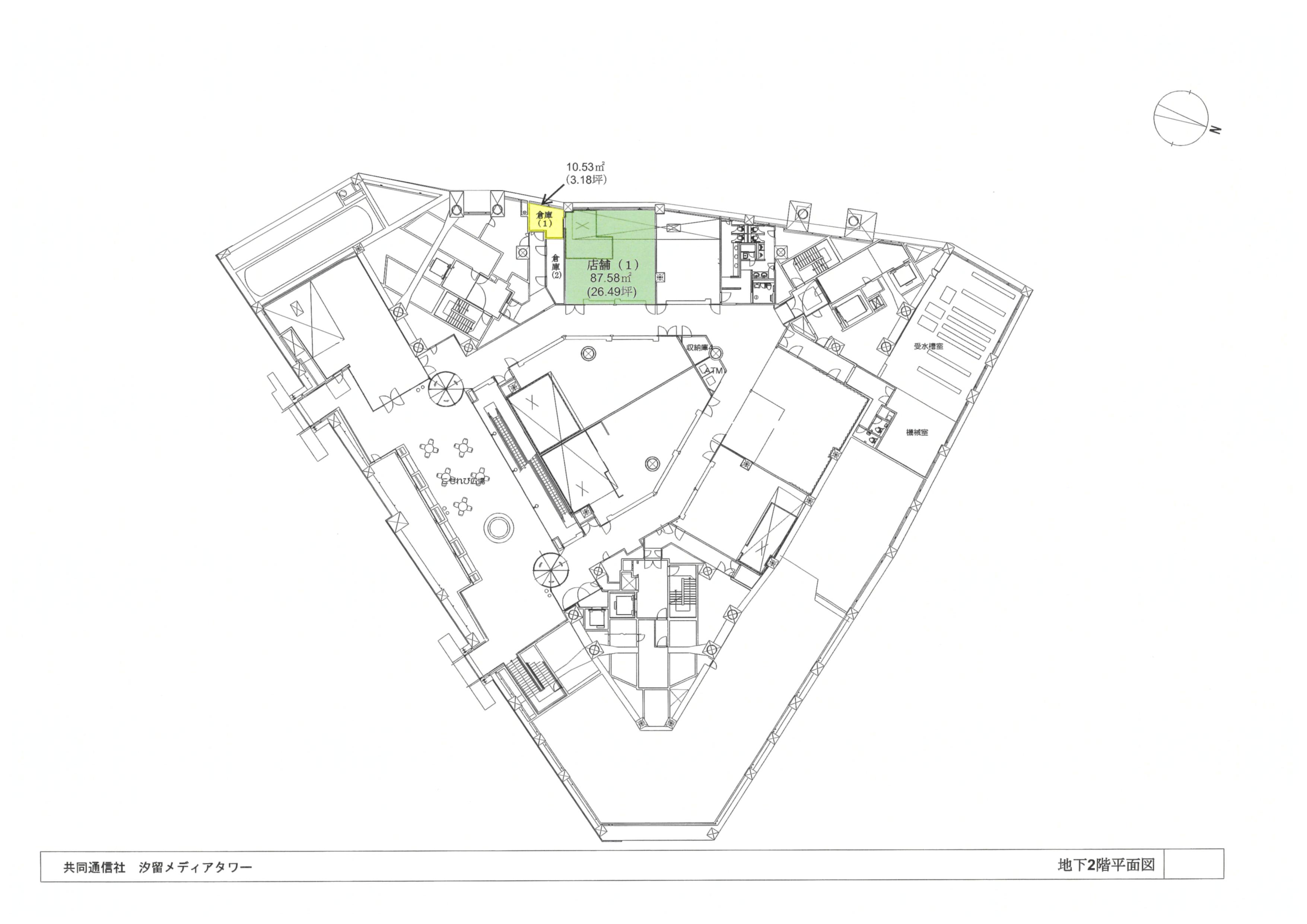
地下2階 店舗⑴

面積
98.11㎡(29.67坪)
貸付可能日
即日
用途
店舗

備考:原状回復未了(居ぬき前提で募集中)
フロア面積内訳
店舗(1)区画:87.58㎡(26.49坪)
倉庫(1)区画:10.53㎡(3.18坪)

地下2階 店舗⑴
この空室情報をPDFでダウンロード

当サイト内の文章・画像等の無断転載及び複製等の行為はご遠慮ください。

ページTOPへ