
| 所在地 | 東京都港区台場二丁目3番1号トレードピアお台場 |
|---|---|
| 竣工年月 | 2001年2月1日 |
| 規模 | 地下2階・地上23階 |
| 構造 | 鉄骨造・一部鉄骨鉄筋コンクリート造 |
| 延床面積 | 76,925.18㎡ |
| 基準階有効面積 | 2,148.28㎡ |
| 基準天井高 | 2,700mm |
| OAフロア | 150mm |
| 空調方式 | セントラル |
| 警備形態 | 24時間有人管理 |
| EV台数 | 乗用16基、貨物3基 |
| 駐車場 | 自走式39台、機械式140台 |
| 開閉館時間 | 平日7:00~19:30 |
| コンセント容量 | 73VA/㎡ |
| 備考 | RE100(再エネ100%)導入済 |
| アクセス | ゆりかもめ「お台場海浜公園」駅、りんかい線「東京テレポート」駅から徒歩3分 |
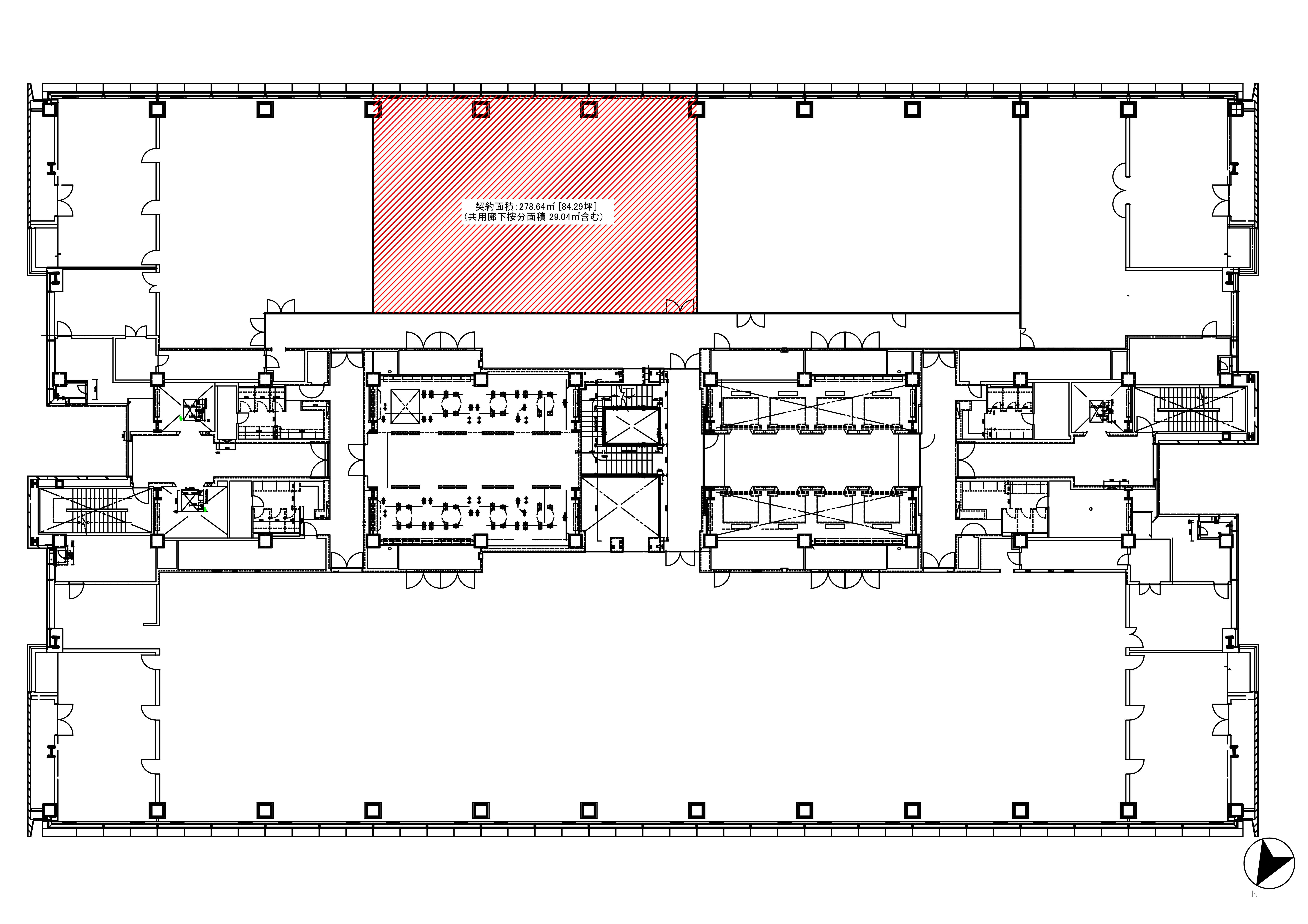
備考:内覧可(原状回復済)
契約面積に共用廊下按分面積29.04㎡(8.78坪)を含む
当サイト内の文章・画像等の無断転載及び複製等の行為はご遠慮ください。