首都圏エリア

トレードピアお台場

トレードピアお台場
所在地 東京都港区台場二丁目3番1号トレードピアお台場
竣工年月 2001年2月1日
規模 地下2階・地上23階
構造 鉄骨造・一部鉄骨鉄筋コンクリート造
延床面積 76,925.18㎡
基準階有効面積 2,148.28㎡
基準天井高 2,700mm
OAフロア 150mm
空調方式 セントラル
警備形態 24時間有人管理
EV台数 乗用16基、貨物3基
駐車場 自走式39台、機械式140台
開閉館時間 平日7:00~19:30
コンセント容量 73VA/㎡
備考

RE100(再エネ100%)導入済
CASBEE不動産Sランク認証取得

アクセス ゆりかもめ「お台場海浜公園」駅、りんかい線「東京テレポート」駅から徒歩3分

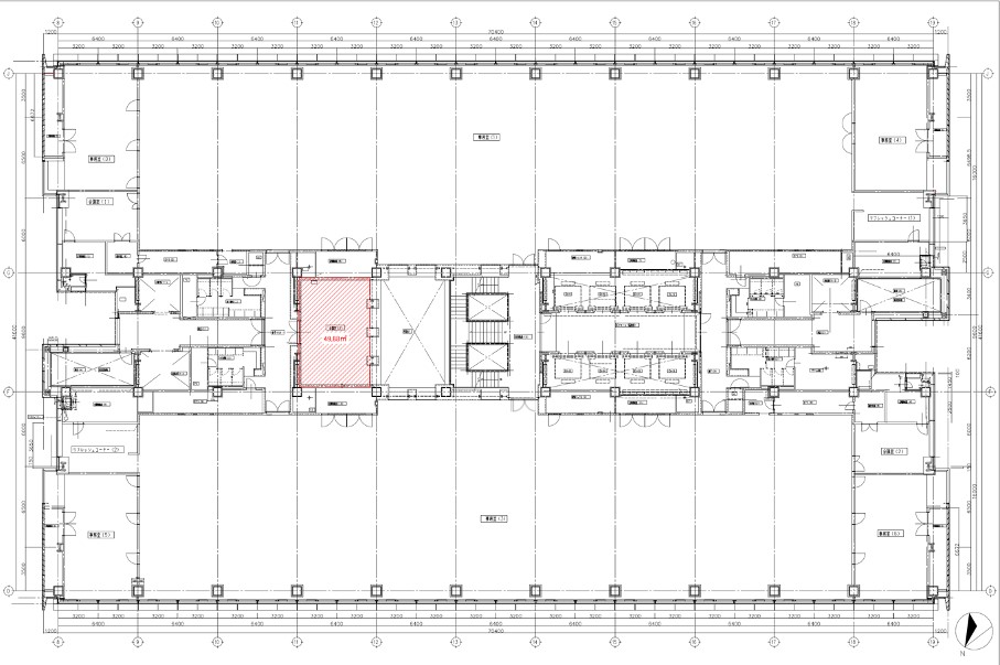
地上19階センター

面積
49.88㎡(15.09坪)
貸付可能日
即日
用途
事務所

備考:内覧可(原状回復済)
ご新規は単独での当区画貸付不可。19階他区画とのセット貸付となる。

地上19階センター
この空室情報をPDFでダウンロード

当サイト内の文章・画像等の無断転載及び複製等の行為はご遠慮ください。

ページTOPへ