
| 所在地 | 北海道札幌市北区北8条西3丁目 |
|---|---|
| 竣工年月 | 2006年12月28日 |
| 規模 | 地下1階、地上11階建 |
| 構造 | 鉄筋コンクリート造 |
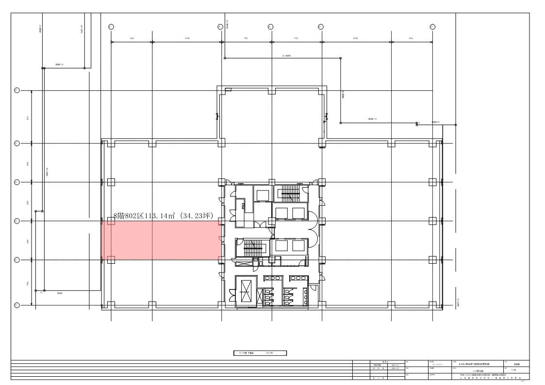
| 延床面積 | 16,048.59㎡ |
| 基準階有効面積 | 1,234.65㎡ |
| 基準天井高 | 2,700mm |
| OAフロア | 100mm |
| 空調方式 | 個別空調 |
| 警備形態 | 機械警備 |
| EV台数 | 事務所用4基 |
| 駐車場 | 機械式駐車 |
| 開閉館時間 | オフィスエントランス:7:00~20:00 |
| コンセント容量 | 50VA/㎡ |
| アクセス | JR札幌駅徒歩2分 |
備考:内覧可(原状回復済)
当サイト内の文章・画像等の無断転載及び複製等の行為はご遠慮ください。