関西・西日本エリア

KMGビル

KMGビル
所在地 福岡県福岡市中央区薬院3-2-23
竣工年月 2021年2月
規模 地上 8階・塔屋 1階
構造 鉄骨造
延床面積 10,412.36㎡(3,149.74坪)
基準階有効面積 980.34㎡(296.55坪)
基準天井高 2,800㎜
アクセス 西鉄天神大牟田線「薬院駅」徒歩3分、福岡市営地下鉄七隈線「薬院駅」徒歩3分

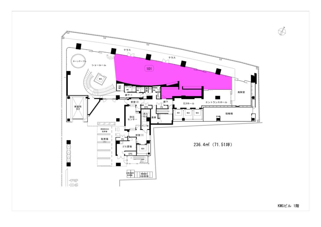
地上1階101区

面積
236.40㎡(71.51坪)
貸付可能日
2026年5月1日
用途
店舗

備考:原状回復未了(入居中)

地上1階101区
この空室情報をPDFでダウンロード

当サイト内の文章・画像等の無断転載及び複製等の行為はご遠慮ください。

ページTOPへ