首都圏エリア

汐留ビルディング

汐留ビルディング
所在地 東京都港区海岸一丁目2番20号
竣工年月 2007年12月1日
規模 地上24階・地下2階
構造 鉄骨造一部鉄骨鉄筋コンクリート造
延床面積 118,572.95㎡
基準階有効面積 3,463.62㎡~3,709.67㎡
基準天井高 2,900mm
OAフロア 100mm
空調方式 個別空調
警備形態 24時間有人警備
EV台数 乗用24基、貨物用2基、その他7基
駐車場 自走式83台、機械式176台
開閉館時間 平日7:00~20:00
コンセント容量 60VA/㎡
備考

RE100(再エネ100%)導入済

アクセス JR浜松町駅北口徒歩2分、都営地下鉄大江戸線大門駅より徒歩3分、都営浅草線大門駅より徒歩4分、東京モノレール浜松町駅より徒歩5分、ゆりかもめ竹芝駅より徒歩5分

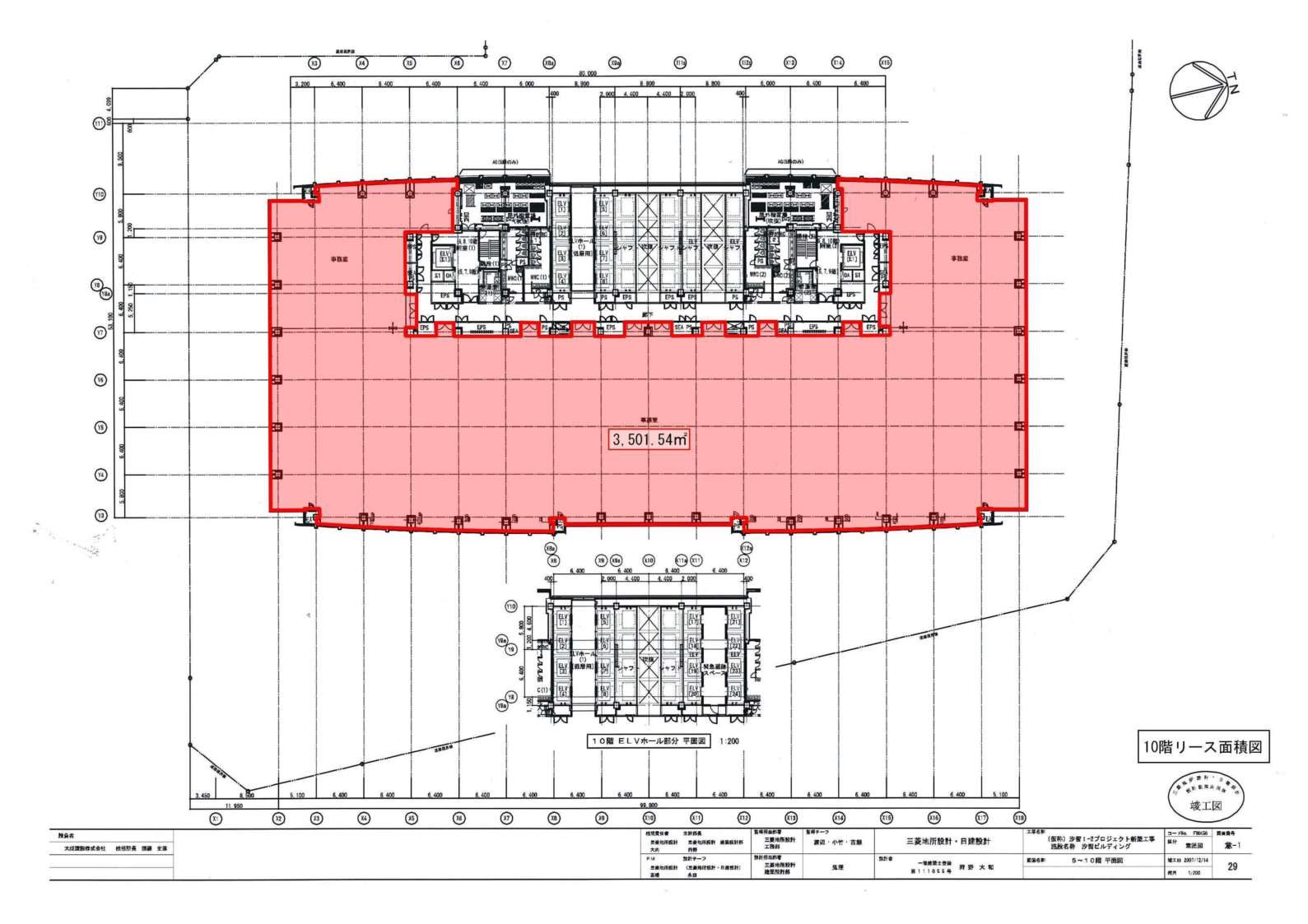
地上10階

面積
3,501.54㎡(1,059.21坪)
貸付可能日
要相談
用途
事務所

備考:内覧可(入居中)

地上10階
この空室情報をPDFでダウンロード

当サイト内の文章・画像等の無断転載及び複製等の行為はご遠慮ください。

ページTOPへ