
| 所在地 | 東京都中央区京橋一丁目10番7号 |
|---|---|
| 竣工年月 | 2011年10月1日 |
| 規模 | 地下1階・地上13階・塔屋1階 |
| 構造 | 鉄骨造・一部鉄骨鉄筋コンクリート造 |
| 延床面積 | 11,127.45㎡ |
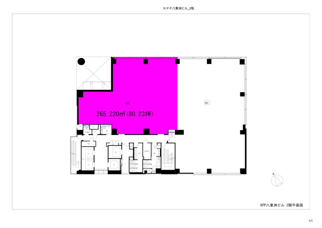
| 基準階有効面積 | 661.52㎡ |
| 基準天井高 | 2,750mm |
| OAフロア | 100mm |
| 空調方式 | 個別 |
| 警備形態 | 24時間有人管理 |
| EV台数 | 乗用3基、貨物1基 |
| 駐車場 | 38台(内機械式36台) |
| 開閉館時間 | 平日6:45~22:00 土日祝日7:45~22:00 |
| コンセント容量 | 50VA/㎡ |
| アクセス | JR「東京」駅徒歩6分、東京メトロ銀座線「京橋」駅徒歩4分、東京メトロ浅草線「宝町」駅徒歩4分、東京メトロ東西線「日本橋」駅徒歩5分 |
備考:原状回復未了(入居中)
※内覧要相談
当サイト内の文章・画像等の無断転載及び複製等の行為はご遠慮ください。