名古屋・金沢エリア

NCO金沢

NCO金沢
所在地 石川県金沢市西念一丁目1番8号
竣工年月 2024年7月31日竣工
規模 地上9階
構造 鉄骨造 ※環境認証 ZEB Ready取得
延床面積 6,928.47㎡(2,095.9坪)
基準階有効面積 499.47㎡(151.09坪)
基準天井高 2,800㎜(OAフロア設置後)
OAフロア 有 高さ100㎜
空調方式 個別空調
警備形態 機械警備
EV台数 2基
駐車場 38台(内、2台ハイルーフ車)
開閉館時間 8:00~19:00
コンセント容量 75VA/㎡程度
備考

 

アクセス JR「金沢」駅より徒歩8分、北陸鉄道「広岡」バス停より徒歩3分

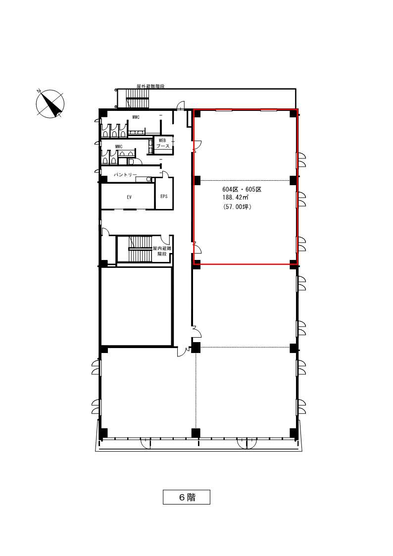
地上6階604区外

面積
188.42㎡(57.00坪)
貸付可能日
即日
用途
事務所

備考:内覧可(新築)
※原状で壁付コンセント設置、OAタップ引込済

地上6階604区外
この空室情報をPDFでダウンロード

当サイト内の文章・画像等の無断転載及び複製等の行為はご遠慮ください。

ページTOPへ