首都圏エリア

JRE東五反田一丁目ビル

JRE東五反田一丁目ビル
所在地 東京都品川区東五反田一丁目24番2号
竣工年月 2004年7月1日
規模 地上8階
構造 鉄骨造
延床面積 6,462.30㎡
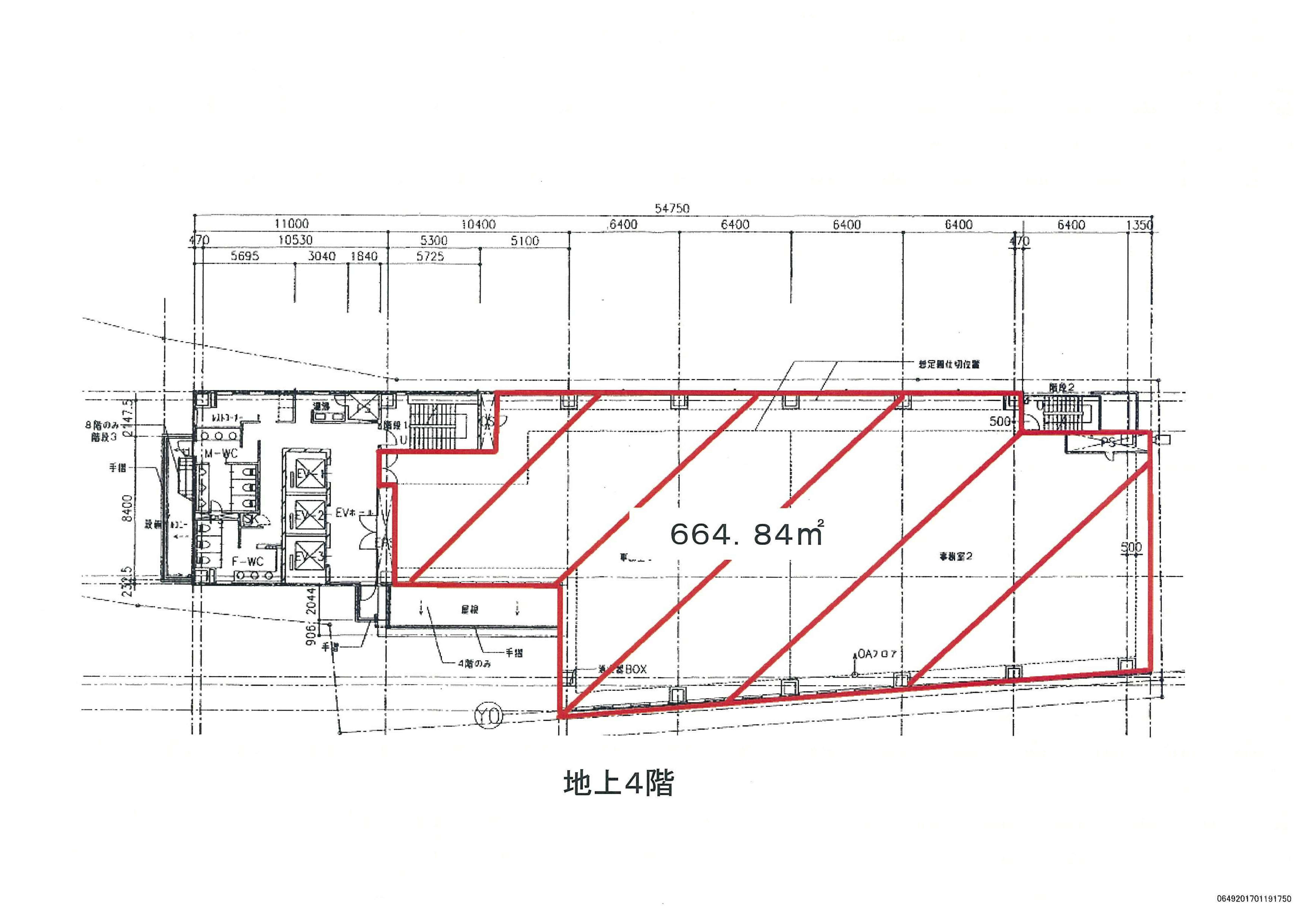
基準階有効面積 664.84㎡
基準天井高 2,800mm
OAフロア 70mm
空調方式 個別
警備形態 機械警備
EV台数 3基
駐車場 機械式19台
開閉館時間 平日7:30~19:00
コンセント容量 50VA/㎡
アクセス JR・都営浅草線・東急池上線「五反田」駅徒歩5分
東急バス・都営バス「五反田」駅徒歩5分

地上4階

面積
664.84㎡(201.11坪)
貸付可能日
2026年7月1日
用途
事務所

備考:原状回復未了(原状回復中)

地上4階
この空室情報をPDFでダウンロード

当サイト内の文章・画像等の無断転載及び複製等の行為はご遠慮ください。

ページTOPへ