北海道エリア

北一条アネックスビル

北一条アネックスビル
所在地 北海道札幌市中央区北1条西4丁目2−12
竣工年月 1985年3月
規模 地上10階・地下1階
構造 鉄骨鉄筋コンクリート
延床面積 13439.54㎡
基準階有効面積 825.52㎡
アクセス 市営地下鉄南北線 大通駅 徒歩3分

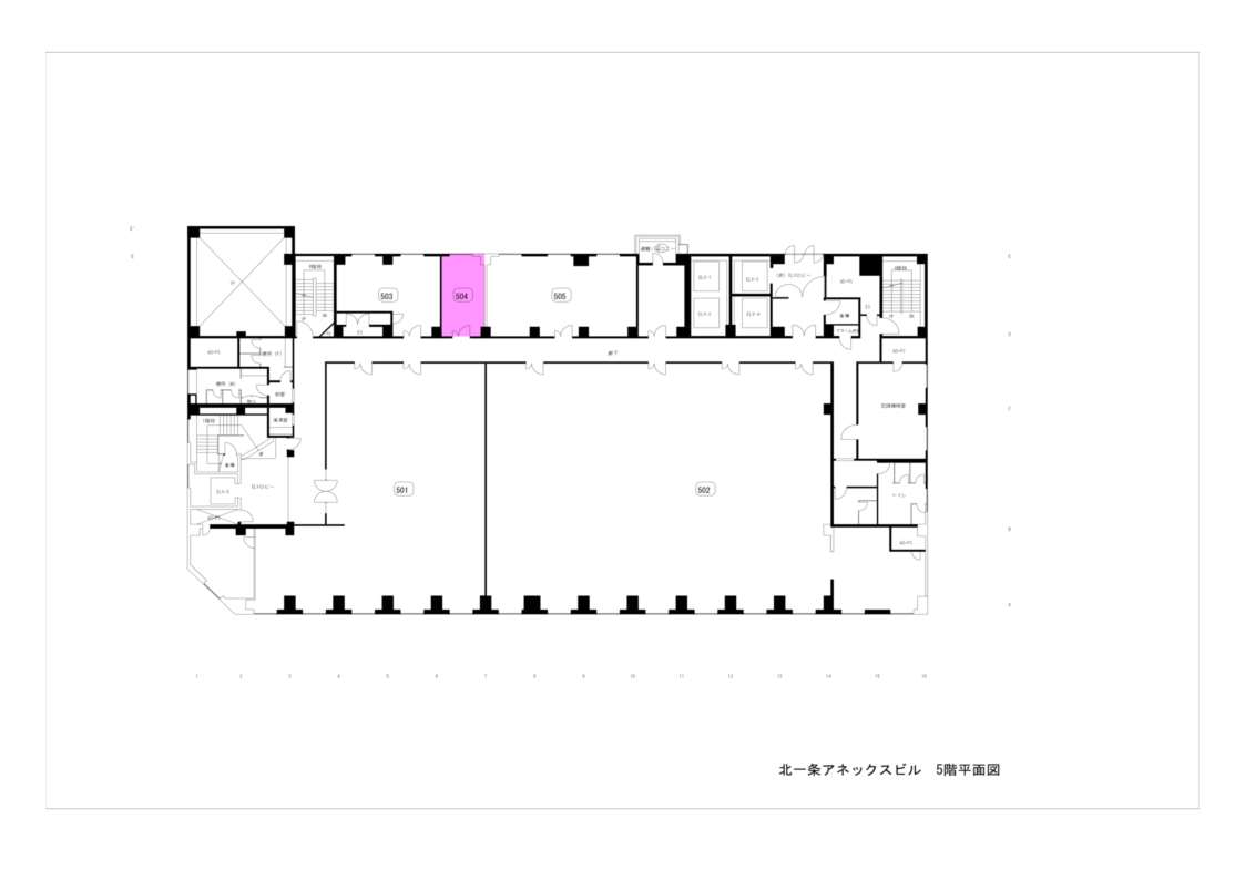
地上5階504区

面積
18.48㎡(5.59坪)
貸付可能日
2026年5月1日
用途
事務所

備考:原状回復未了(入居中)

地上5階504区
この空室情報をPDFでダウンロード

当サイト内の文章・画像等の無断転載及び複製等の行為はご遠慮ください。

ページTOPへ