
| 所在地 | 大阪府大阪市北区梅田一丁目12番17号 |
|---|---|
| 竣工年月 | 1995年7月1日 |
| 規模 | 地上17階、地下3階 |
| 構造 | 鉄骨・鉄骨鉄筋コンクリート造 |
| 延床面積 | 18,673.28㎡ |
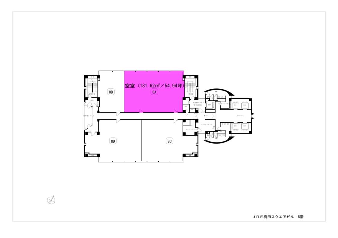
| 基準階有効面積 | 611.80㎡ |
| 基準天井高 | 2,550mm |
| OAフロア | 50mm(一部未施工部分有) |
| 空調方式 | 個別空調(ゾーン空調) |
| 警備形態 | 有人警備 |
| EV台数 | 6基(非常用1基、低層用1基含む) |
| 駐車場 | 平面駐車場16台、機械式駐車場47台(水平循環式41台・二段式6台) |
| 開閉館時間 | 7:00~23:00 |
| コンセント容量 | 40VA/㎡ |
| 備考 | CASBEE Sランク認証取得 |
| アクセス | JR大阪駅徒歩2分 |
備考:原状回復未了(原状回復中)
当サイト内の文章・画像等の無断転載及び複製等の行為はご遠慮ください。